販売物件情報
越前市高瀬1丁目
物件情報
| 価格 | 2,380万円 |
|---|
この物件のお支払い例
頭金0円/ボーナス払い0円
2,380
62,832
※上記支払例の借入条件:金利0.60%、借入総額2,380万円、借入期間35年
| 画像 | |
|---|---|
|
|
|
|
|
|
所在地・交通
| 所在地 | 越前市高瀬1丁目 | ||
|---|---|---|---|
| 最寄駅 | ハピライン 武生 | 徒歩分数 | 25分 |
| 最寄バス停 | 徒歩分数 | ||
| 小学校校区 | 武生西小 | 中学校校区 | 武生第二中 |
※学校区は住所から自動判定したものであり、保証できる情報ではございません。正確な学校区はお問い合わせ下さい。
「人型アイコン」を地図上にドラッグすることで『Google Street View』に切り替わります。
※地図上の「対象地」は「〒915-0832 福井県越前市高瀬1丁目12」の場所を指しています。実際の場所ではない場合がございます。詳しくはお問い合わせください。
物件概要
| 種目 | 新築一戸建住宅 | ||
|---|---|---|---|
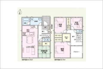
| 間取り | 4LDK | 間取り内訳 | |
| 土地面積 | 165.29㎡(50坪) | 私道面積 | |
| 建物面積 | 102.87㎡(31.11坪) | 建物構造規模 | 木造 2階建 |
| 築年月(竣工月) | 2025年11月 | 駐車場 | 有 |
| 建ぺい率/容積率 | 60%/200% | 都市計画 | 未線引区域 |
| 接道状況 | 北6.1m 公道 接面8.7m 一方道路 | ||
| 地目 | 田 | ||
| 土地権利 | 所有権 | 地勢 | 平坦 |
| 用途地域 | 第一種中高層住居専用地域 | ||
| 現況 | 空家 | 取引態様 | 媒介 |
取引条件等
| 引渡し | 期日指定 2025年11月下旬 |
|---|
その他
| 設備 | 温水洗浄便座、トイレ2ヶ所、浴室乾燥機、システムキッチン、カウンターキッチン、IHクッキングヒーター、浄水器、床下収納、複層ガラス、モニタ付インターホン、ディンプルキー、ルーフバルコニー、駐車場3台分、[火災警報器等設置済] | ||
|---|---|---|---|
| 特徴 | オール電化 | ||
| 諸条件・相談 | |||
| 情報登録日 | 2025年8月2日 | 情報更新予定日 | 2025年12月15日 |
| 物件番号 | 26618 | ||



































